• 网站首页
  • |
  • 公司简介
  • |
  • 新闻中心
  • |
  • 案例展示
  • |
  • 优惠活动
  • |
  • 公司团队
  • |
  • 材料展示
  • |
  • 装修杂谈
  • |
  • 招贤纳士
  • |
  • 员工活动
  • |
  • 联系我们
  • 班芙春天140平米
      发表日期:2014-11-20 点击率:2183 返回
    班芙春天140平米-爱尔装饰

    班芙春天140平米客厅效果图-爱尔装饰


    班芙春天140平米餐厅效果图-爱尔装饰

    班芙春天140平米客厅效果图-爱尔装饰
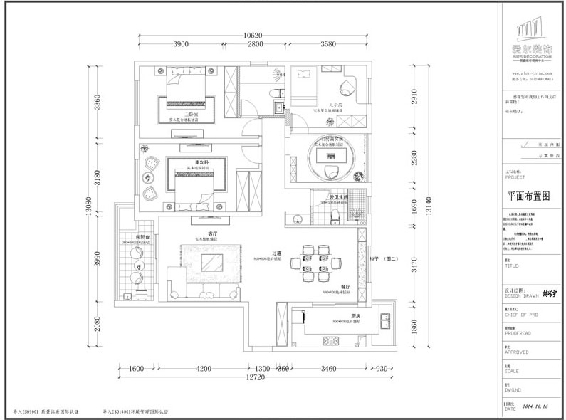
    班芙春天140平米平面布置图-爱尔装饰

    班芙春天140平米平面布置图

     版权所有:苏州爱尔装饰工程有限公司   备案号: 苏ICP备12004746号

    地址:苏州市吴中区澄湖西路鑫悦生活广场2幢428-430室 电话:0512-62057779