
| 祝贺爱尔装饰顺利进驻新区合景睿峰施工 |
发表人:Ms曹 发表日期:2013-12-11 点击率:2114 返回 |
【工程地址】苏州新区合景睿峰 【房屋面积】建筑48平米,层高 【承接方式】设计施工全包 【设 计 师】唐友谊 【施工期限】
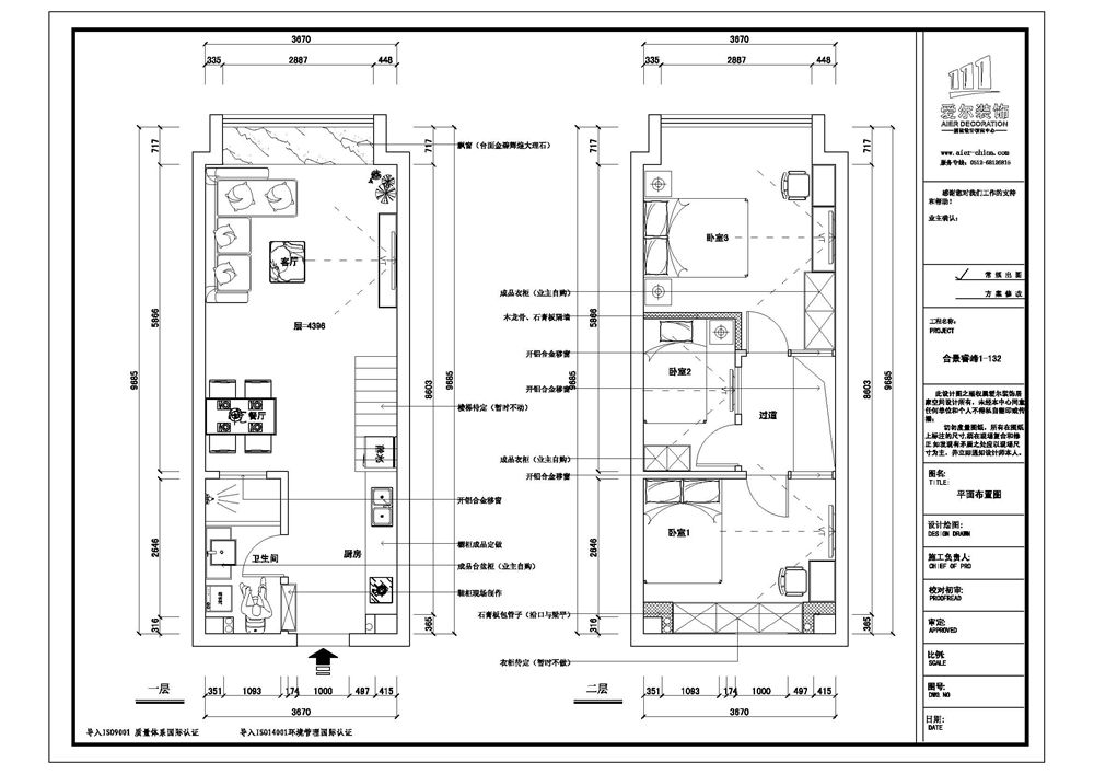
![]() 这是该房屋的施工平面布置图
![]() 这是参照效果图
今天上午咱们爱尔装饰相关工作人员已经与业主
|
版权所有:苏州爱尔装饰工程有限公司 备案号: 苏ICP备12004746号 地址:苏州市吴中区澄湖西路鑫悦生活广场2幢428-430室 电话:0512-62057779 |