• 网站首页
  • |
  • 公司简介
  • |
  • 新闻中心
  • |
  • 案例展示
  • |
  • 优惠活动
  • |
  • 公司团队
  • |
  • 材料展示
  • |
  • 装修杂谈
  • |
  • 招贤纳士
  • |
  • 员工活动
  • |
  • 联系我们
  • 庆祝爱尔装饰即将进驻苏州世茂运河城尚运苑
    发表人:Ms曹  发表日期:2014-01-15 点击率:2330 返回

    【工程地址】苏州吴中区世贸运河城尚运苑

    【房屋面积】建筑188平米,婚房

    【承接方式】设计施工全包

    【设   师】唐友谊

    【装修风格】现代简约

    【施工期限】2014220-2014520

     

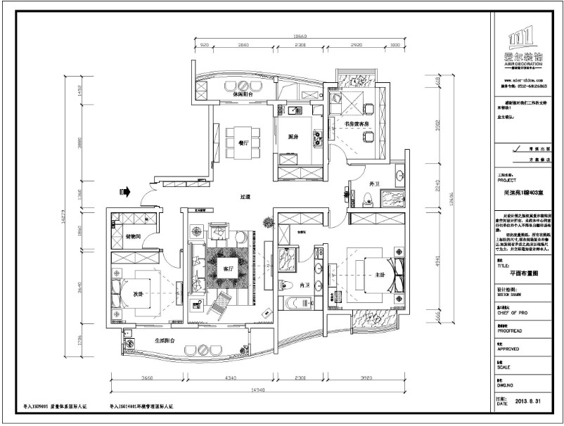
    112,世茂运河城尚运苑的金先生如约来到我们爱尔装饰,与设计师对图纸细节进行深入沟通,也把预算作了相应的调整,随后顺利签约。效果图及施工图目前正在制作和完善中。届时再传上来与大家共享。先上平面布置图。

    爱尔装饰尚运苑平面布置图 
    爱尔装饰尚运苑平面布置图

    在此我们感谢金先生父子的共同选择。也感谢金先生的同事先生的友情推荐。

     本案约定年后正月二十日正式开工,让我们共同期待。

    另,本公司将于124正式放假,请想年前定好方案的业主朋友们抓紧时间过来洽谈哦,抓住机会,年前下定,年后装修,省的不仅仅是,还有,还有很多哦!详情http://www.aier-china.com/page.php?id=4



    爱尔,恋家的理由!
    电话:0512-68126865  65856780  传真:0512-65856780
    24小时服务热线:13706211107
    企业QQ:800031365(爱尔装饰)
    邮箱:aier-china@163.com或者800031365@b.qq.com
    官方网址:www.aier-china.com 
    公司地址:苏州市吴中区澄湖西路500号--鑫悦生活广场2-428&430(原名蜜蜂城)

     版权所有:苏州爱尔装饰工程有限公司   备案号: 苏ICP备12004746号

    地址:苏州市吴中区澄湖西路鑫悦生活广场2幢428-430室 电话:0512-62057779