
| 感谢蝴蝶湾程先生签约苏州爱尔装饰 |
发表人:Ms曹 发表日期:2014-04-16 点击率:2135 返回 |
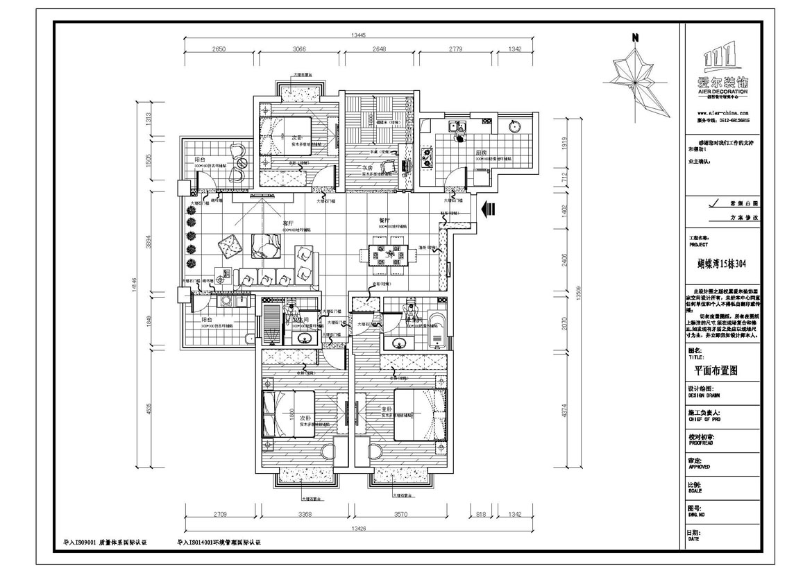
【工程地址】园区蝴蝶湾 【房屋面积】140平 【承接方式】半包 【设 计 师】蔡光辉 【施工期限】2014年4月7日至7月7日 程先生中国美院毕业,在杭州设计院工作,是设计业界的专家。因此买房在苏州蝴蝶湾的弟弟找来程先生做参谋,请他代理决定装修事宜,包括设计报价的审核以及合同洽谈。程先生虽然是装饰界的行家,但是对苏州市场并不熟,听朋友介绍找到了我们爱尔装饰的电话68126865,并主动咨询了过来。约好我们设计师蔡工第二天量房。经过现场沟通,相谈甚好,于是一起到养育巷的分店看了一下,随即表态,设计师做好平面布置发给他确认,只要认可了就可让自己的弟弟来签订设计合同然后再报价和具体施工方案,并将于1周内签订施工合同。面对如此真诚和豪爽的客户我们只有感激和尽心尽力.平面图经过一次小修改即定下,如程先生所说,第三天签订了设计合同,并缴了三千元定金。随后设计师与程先生在网上沟通了具体方案,并做出了初步的预算。
|
版权所有:苏州爱尔装饰工程有限公司 备案号: 苏ICP备12004746号 地址:苏州市吴中区澄湖西路鑫悦生活广场2幢428-430室 电话:0512-62057779 |