
| 感谢和乔丽晶倪先生签约爱尔装饰 |
发表人:Ms曹 发表日期:2014-06-17 点击率:2207 返回 |
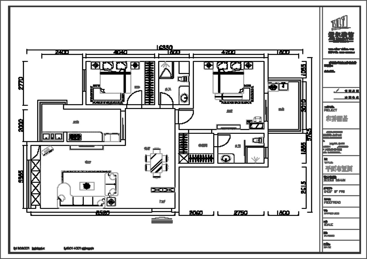
【工程地址】园区和乔丽晶 【房屋面积】90平 【承接方式】半包 【设 计 师】姜凡 【施工期限】2014年6月8号至8月23号 和乔丽晶的倪先生是我们爱尔装饰养育巷分店的上门客户,之前也找了好几家公司做比较,最后还是选择我们爱尔装饰,不仅是我们的性价比比较高,而且也是被我们姜工的完美设计和个人修养所信服。在此,我们非常感谢倪先生对我们爱尔装饰的选择和信任。目前,施工队伍已于6月8号进场施工。 ![]() 爱尔装饰—和乔丽晶平面布置图 爱尔装饰,恋家的理由! 客服电话:68126865 13706211107 公司传真:65856780 公司官网:www.aier-china.com 总店地址:吴中区澄湖西路500号 鑫悦生活广场2-428 分店地址:苏州姑苏区养育巷63号(丰乐宫演艺中心对面) 展厅地址:吴中区澄湖西路500号 金鑫商务大厦606室 |
版权所有:苏州爱尔装饰工程有限公司 备案号: 苏ICP备12004746号 地址:苏州市吴中区澄湖西路鑫悦生活广场2幢428-430室 电话:0512-62057779 |