
| 爱尔装饰城河新旅城设计方案赏析 |
发表人:Ms曹 发表日期:2015-01-14 点击率:2291 返回 |
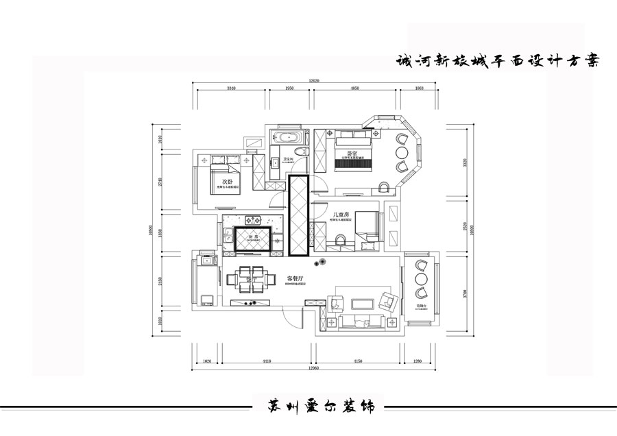
【地 址】:新区诚河新旅城 【户 型】:3室2厅1厨1卫 【建筑面积】:
【设计风格】:现代欧式
【设 计 师】:赵常宇(首席设计师)
【装修公司】:苏州爱尔装饰
![]() 封面 ![]() 平面布置图 ![]() 客厅概念设计 ![]() 客厅效果图参考 ![]() 餐厅参考设计 ![]() 沙发背景设计参考 爱尔装饰,恋家的理由! 24小时咨询和预约热线:13706211107 曹小姐 吴中店地址:苏州市吴中区澄湖路888号 恒润国际大厦B座2808 |
版权所有:苏州爱尔装饰工程有限公司 备案号: 苏ICP备12004746号 地址:苏州市吴中区澄湖西路鑫悦生活广场2幢428-430室 电话:0512-62057779 |