• 网站首页
  • |
  • 公司简介
  • |
  • 新闻中心
  • |
  • 案例展示
  • |
  • 优惠活动
  • |
  • 公司团队
  • |
  • 材料展示
  • |
  • 装修杂谈
  • |
  • 招贤纳士
  • |
  • 员工活动
  • |
  • 联系我们
  • 新湖明珠城
    发表人:Ms曹  发表日期:2016-05-24 点击率:2471 返回

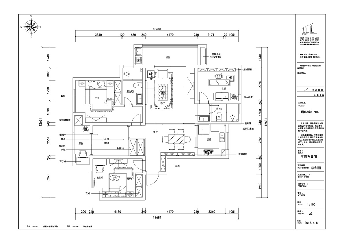
    【项目名称】:一颗落在苏州的“中式明珠”
    【项目地点】:新湖明珠城

    【项目面积】:156平方

    【项目施工】:苏州爱尔装饰

    【承包方式】:纯设计

    【开工时间】:2016.5.18
    【项目设计】:李剑丽


    原始照片:
                         

                         

                         

                        
    设计图纸:

    效果图:

                      

                     

                     

     
                            更好的设计 只为给你一个更好的家!

     版权所有:苏州爱尔装饰工程有限公司   备案号: 苏ICP备12004746号

    地址:苏州市吴中区澄湖西路鑫悦生活广场2幢428-430室 电话:0512-62057779