• 网站首页
  • |
  • 公司简介
  • |
  • 新闻中心
  • |
  • 案例展示
  • |
  • 优惠活动
  • |
  • 公司团队
  • |
  • 材料展示
  • |
  • 装修杂谈
  • |
  • 招贤纳士
  • |
  • 员工活动
  • |
  • 联系我们
  • 鼎泰花园
    发表人:Ms曹  发表日期:2018-02-11 点击率:2625 返回

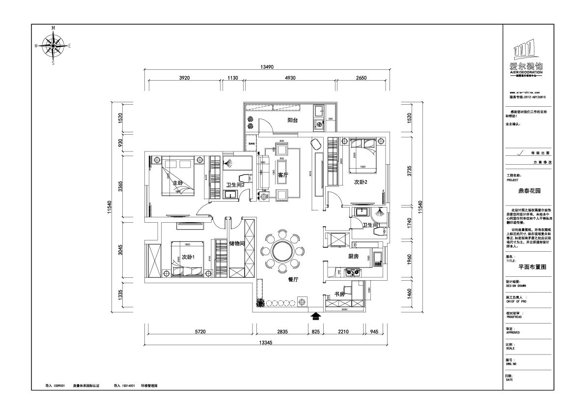
    【项目名称】:鼎泰花园改造工程
    【项目地点】:南环鼎泰花园

    【项目面积】:124平方

    【项目施工】:苏州爱尔装饰

    【承包方式】:全包

    【开工时间】:2016.6.8
    【项目设计】:李剑丽

    改造前:








    设计图纸:

       装修不在乎苦累 只为追求客户满意的笑容!

     版权所有:苏州爱尔装饰工程有限公司   备案号: 苏ICP备12004746号

    地址:苏州市吴中区澄湖西路鑫悦生活广场2幢428-430室 电话:0512-62057779